Lujo, diseño y versatilidad en el corazón del Barrio de Salamanca

Madrid, Madrid Mostrar en mapa
1.945.000 €
3 habs.
4 baños
160
1 Planta
Código de llamada: 110
Lujo, diseño y versatilidad en el corazón del Barrio de Salamanca

Imagina vivir en un espacio donde el diseño contemporáneo se fusiona con el confort más exclusivo. Esta impresionante propiedad exterior con terraza, ubicada en una 1ª planta en la prestigiosa calle Alcántara esquina con Ortega y Gasset, te brinda una oportunidad única tanto para inversión como para residencia permanente en una de las zonas más deseadas de Madrid.

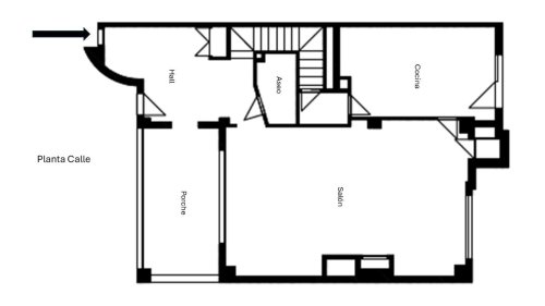
Actualmente en fase final de reforma (entrega estimada finales de junio), este inmueble ha sido diseñado para ofrecer dos viviendas independientes con accesos separados —ideal para quien busca rentabilidad inmediata— o una única residencia de 145 m² construidos, pensada para disfrutar en grande, con amplitud, funcionalidad y estilo.

Distribución pensada para enamorar
Zona social impactante: gran salón de diseño abierto con zona de comedor y cocina con isla central, perfecta para recibir invitados. Electrodomésticos de alta gama y mobiliario hecho a medida.

Tres dormitorios tipo suite, cada uno con baño privado y armarios empotrados.

Aseo de cortesía para invitados.

Domótica, climatización por aire acondicionado, calefacción central por gas natural y acabados de lujo.

Patio ajardinado privado, un rincón verde ideal para desconectar sin salir de casa.

Terraza exterior, donde la luz fluye a lo largo del día gracias a sus ventanales y su excelente orientación.

Edificio y entorno
Situado en un edificio moderno con portero físico, dos ascensores y acceso adaptado para personas con movilidad reducida, rodeado de calles tan icónicas como Conde de Peñalver, Juan Bravo y Ayala, con una oferta inmejorable de comercios, servicios y restauración.

Ya sea que busques una inversión sólida y versátil o el hogar soñado para tu familia, esta propiedad lo tiene todo: ubicación, estilo, luz, amplitud y calidad.

Además, hay margen para una negociación discreta, lo que lo convierte en una oportunidad aún más atractiva.

Contáctanos hoy y ven a descubrirla.
Déjate inspirar, recorre sus espacios y empieza a imaginar tu nueva vida aquí. Porque los hogares que enamoran, no esperan.

Características generales

  • Madrid
  • 1
  • 3
  • 4
  • 1965

Especificaciones técnicas

  • 160

Certificado energético

  • No disponible
  • No disponible
  • No disponible
  • Etiqueta de calificación energética
    ESCALA DE LA CALIFICACIÓN ENERGÉTICA

    Consumo de energía

    kW h m² / año

    Emisiones

    kg CO₂ m² / año

    A más eficiente
    B
    C
    D
    E
    F
    G menos eficiente
    Esta información se irá actualizando diariamente

Precio

Precio del inmueble:
1.945.000 €
Precio por m²:
--/m²
Avisame si baja de precio
Te avisaremos si el precio del inmueble baja.
Calcular hipoteca bancaria
Simulador de hipotecas CaixaBank

Puedes simular la cuota con la calculadora de hipotecas CaixaBank.

Ubicación

Madrid, Madrid, Calle Alcántara, 35, Madrid, Spain
Dirección aproximada por deseo del anunciante.
Information Image
Equipa tu vivienda con Facilitea

¿Ya elegiste tu hogar ideal? Equipa tu hogar con todo lo que necesitas para convertirlo en un espacio acogedor y funcional.

Contactar
Selecciona el motivo de contacto
Solicitar información del inmueble y financiación
Solicitar información del inmueble
Otro motivo de contacto
Añadir comentario (opcional)

Facilitea comunicará los datos facilitados al anunciante del inmueble para atender su solicitud. El anunciante los tratará en calidad de responsable y le informará de su tratamiento.

También te puede gustar