Ofrecido por Grupo Inmobiliaria 2030, S.L

Venta, Piso, Vigo

Pontevedra, Vigo Mostrar en mapa
325.000 €
2 habs.
1 baños
61
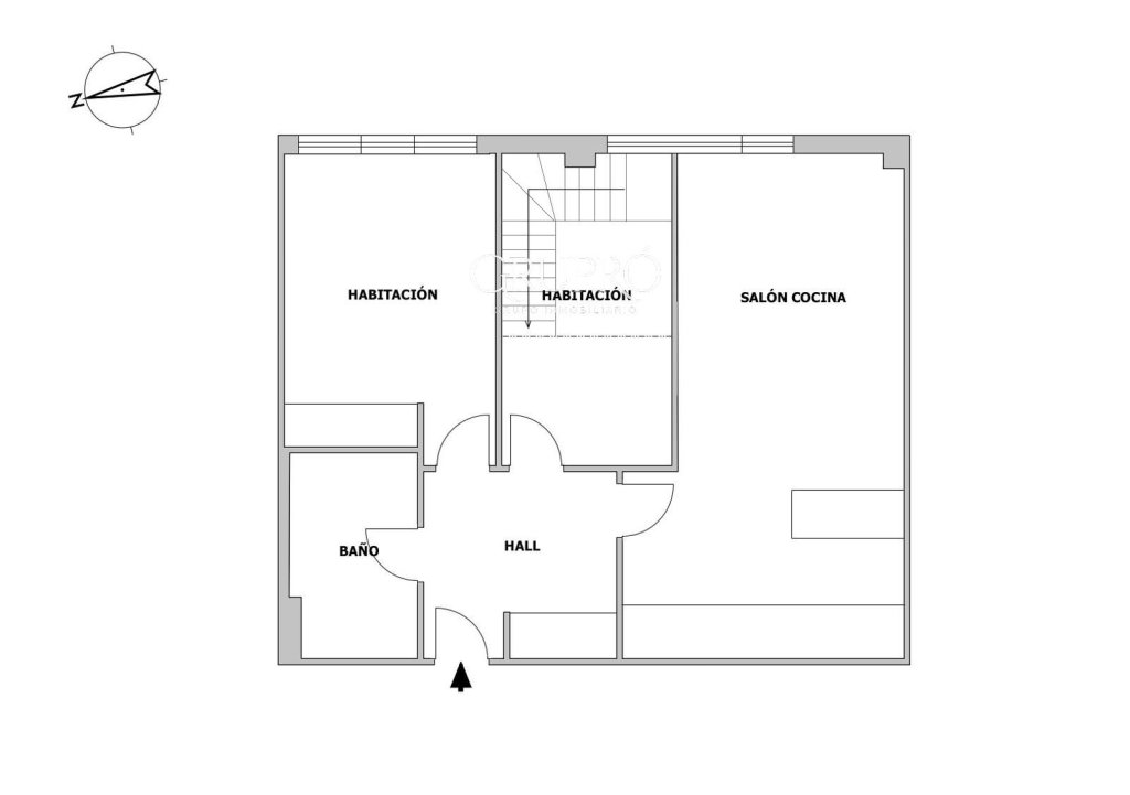
Oportunidad. Piso semi-nuevo disponible en pleno centro de VigoVendemos piso de 61 m2 situado en Rúa Areal, en esquina con la calle Pontevedra y al lado mismo de la Alameda.  La vivienda se ubica en 1ª planta alta y es toda exterior, salvo el baño. Distribución:-2 habitaciones amplias, ambas con altillos;-Salón comedor-cocina de 21 m2;-1 baño completo y amplio, con cabina de ducha;-Vestíbulo de entrada, también con armario empotrado.Dispone además de una terraza-tendedero con  acceso independiente frente a la misma vivienda. Cuenta con suelos de tarima, carpintería de primerísima calidad, calefacción y agua caliente individuales, una plaza de garaje de acceso directo y un trastero.Vivienda con magníficas calidades y acabados, en un edificio con fachada de piedra y de reciente construcción (año 2009), Contacta con nosotros para más información o visita.*Información al consumidor: (1) El precio indicado corresponde exclusivamente al inmueble y no incluye impuestos ni gastos derivados de la compraventa (ITP, notaría, registro u otros que pudieran corresponder conforme a la normativa vigente). (2) El tipo aplicable del Impuesto sobre Transmisiones Patrimoniales en Galicia puede variar en función de las circunstancias personales y fiscales del comprador. (3) Las superficies y características del inmueble se corresponden con la información facilitada por la propiedad, con la documentación disponible y/o, en su caso, con mediciones o planos de carácter orientativo, pudiendo ser objeto de comprobación documental.

Características generales

  • Vigo
  • Piso
  • 2
  • 1

Especificaciones técnicas

  • 61
  • 61

Certificado energético

  • No disponible
  • E 128.00 kWh/m² año
  • E 27.00 kg CO2/m² año
  • Etiqueta de calificación energética
    ESCALA DE LA CALIFICACIÓN ENERGÉTICA

    Consumo de energía

    kW h m² / año

    Emisiones

    kg CO₂ m² / año

    A más eficiente
    B
    C
    D
    E
    128.0
    27.0
    F
    G menos eficiente
    Esta información se irá actualizando diariamente
Ascensor

Precio

Precio del inmueble:
325.000 €
Precio por m²:
5.328 €/m²
Avisame si baja de precio
Te avisaremos si el precio del inmueble baja.
Calcular hipoteca bancaria
Simulador de hipotecas CaixaBank

Puedes simular la cuota con la calculadora de hipotecas CaixaBank.

Ubicación

Pontevedra, Vigo
Dirección aproximada por deseo del anunciante.
Information Image
Equipa tu vivienda con Facilitea

¿Ya elegiste tu hogar ideal? Equipa tu hogar con todo lo que necesitas para convertirlo en un espacio acogedor y funcional.

Contactar
Completa el formulario para contactar con el anunciante y ver su número de teléfono.
Selecciona el motivo de contacto
Solicitar información del inmueble y financiación
Solicitar información del inmueble
Otro motivo de contacto
Añadir comentario (opcional)

Facilitea comunicará los datos facilitados al anunciante del inmueble para atender su solicitud. El anunciante los tratará en calidad de responsable y le informará de su tratamiento.

Si lo prefieres, también puedes llamarlo al siguiente número de teléfono.
886020700
Ofrecido por Grupo Inmobiliaria 2030, S.L