Ofrecido por CENTRAL DP 2013 SL

Venta, piso, San Fernando - San Fernando (CADIZ) - ronda del estero

Cádiz, San Fernando Mostrar en mapa
124.500 €
1 habs.
1 baños
40
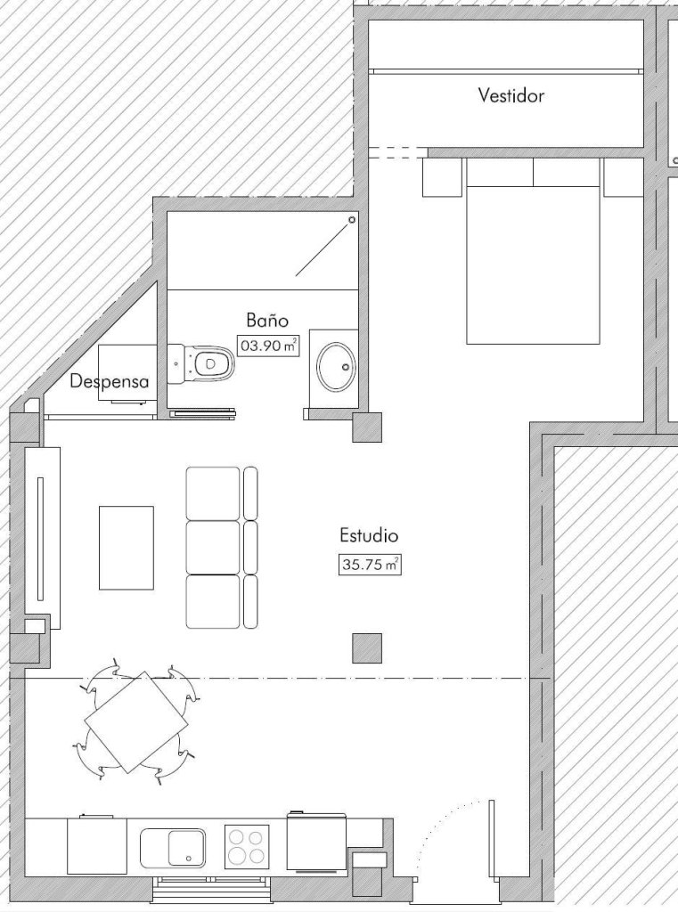
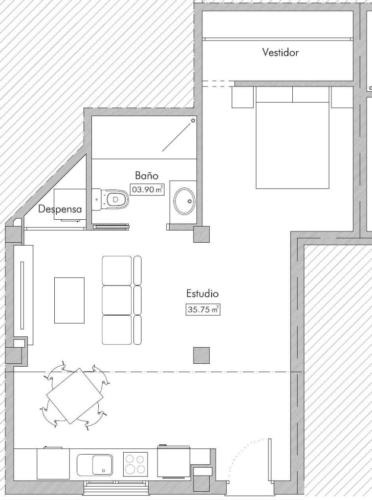
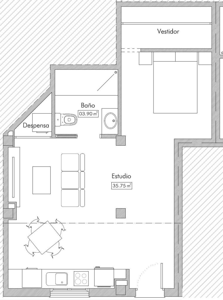
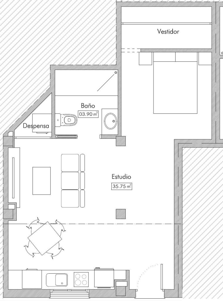
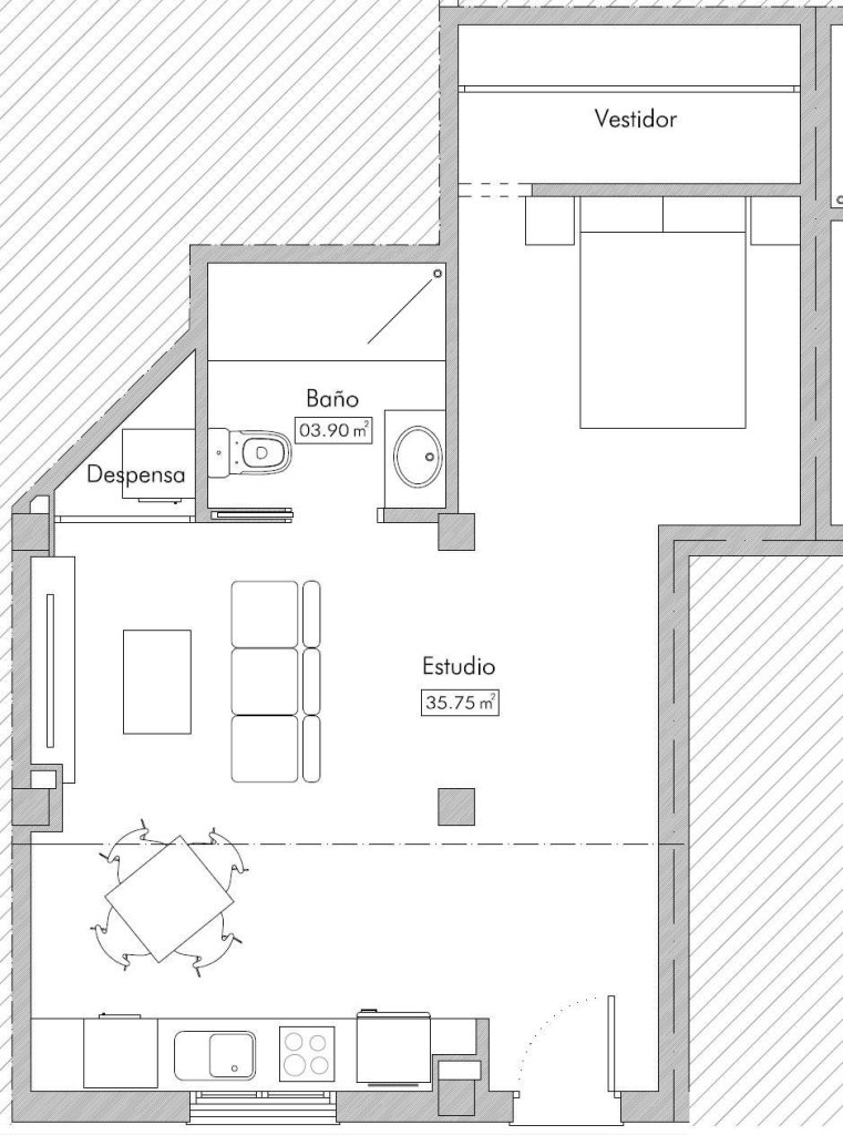
Te presentamos esta atractiva vivienda a estrenar, resultado de la conversión de un local en un hogar moderno y funcional. Con una superficie de 40 m², está diseñada para aprovechar al máximo cada espacio y ofrecer comodidad y estilo contemporáneo.La distribución incluye un dormitorio con vestidor, un salón con cocina integrada y un baño completo, todo con acabados actuales y líneas modernas, ya que la construcción se está realizando en la actualidad. La entrega está prevista aproximadamente para el mes de mayo, lo que la convierte en una excelente oportunidad tanto para vivir como para invertir.La vivienda se encuentra a pie de calle y dispone de entrada independiente, aportando privacidad y fácil acceso. Aunque el edificio cuenta con zonas comunes como piscina y jardines, actualmente esta vivienda no tiene acceso a ellas debido a su entrada exterior independiente.Equipada con ventanas de PVC oscilobatientes, garantiza un buen aislamiento térmico y acústico. Una opción ideal para quienes buscan un hogar nuevo, moderno y práctico, listo para estrenar en pocos meses. ( El PVP indicado no incluye impuestos ni gastos de Escritura ).

Características generales

  • San Fernando
  • Piso
  • 1
  • 1
  • Totalmente amueblado
  • 2026

Especificaciones técnicas

  • 40
  • 40
  • Ninguno

Certificado energético

  • Pendiente de certificación
  • Pendiente de certificación
  • Pendiente de certificación
  • Etiqueta de calificación energética
    ESCALA DE LA CALIFICACIÓN ENERGÉTICA

    Consumo de energía

    kW h m² / año

    Emisiones

    kg CO₂ m² / año

    A más eficiente
    B
    C
    D
    E
    F
    G menos eficiente
    Esta información se irá actualizando diariamente
Aire acondicionado

Precio

Precio del inmueble:
124.500 €
Precio por m²:
3.112 €/m²
Avisame si baja de precio
Te avisaremos si el precio del inmueble baja.
Calcular hipoteca bancaria
Simulador de hipotecas CaixaBank

Puedes simular la cuota con la calculadora de hipotecas CaixaBank.

Ubicación

Cádiz, San Fernando
Dirección aproximada por deseo del anunciante.
Information Image
Equipa tu vivienda con Facilitea

¿Ya elegiste tu hogar ideal? Equipa tu hogar con todo lo que necesitas para convertirlo en un espacio acogedor y funcional.

Contactar
Completa el formulario para contactar con el anunciante y ver su número de teléfono.
Selecciona el motivo de contacto
Solicitar información del inmueble y financiación
Solicitar información del inmueble
Otro motivo de contacto
Añadir comentario (opcional)

Facilitea comunicará los datos facilitados al anunciante del inmueble para atender su solicitud. El anunciante los tratará en calidad de responsable y le informará de su tratamiento.

Si lo prefieres, también puedes llamarlo al siguiente número de teléfono.
933069090
Ofrecido por CENTRAL DP 2013 SL