Ofrecido por INVESTCASA IURIS S.L.

Venta, Piso, Mijas

Málaga, Mijas Mostrar en mapa
344.000 €
2 habs.
2 baños
84
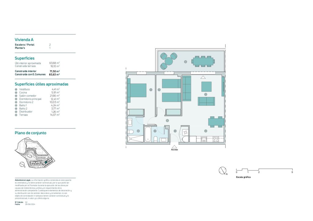
Exclusivo PISO de 2 dormitorios y 2 baños [71 m2 (vivienda) + 14 m2 (terraza)]. Fantástico Residencial privado con vistas directas al campo de golf Calanova Golf Club.
La cocina se entrega amueblada con un diseño actual de muebles altos y bajos. La cocina está equipada con placa de inducción, campana extractora, frigorífico, lavavajillas, lavadora, horno eléctrico y microondas. La climatización frío-calor por aire y la producción de agua caliente sanitaria se realizan mediante un sistema de aerotermia individual de alta eficiencia. Garaje y trastero. Calificación Energética A. Preinstalación para recarga de vehículo eléctrico.
El proyecto cuenta con una piscina comunitaria con área de solárium. El residencial cuenta con zonas ajardinadas diseñadas por un equipo de paisajismo, dotadas de especies vegetales mediterráneas, así como Gimnasio y Espacio Club Social. Entrega 2 Semestre 2.027

Características generales

  • Mijas
  • Piso
  • 2
  • 2

Especificaciones técnicas

  • 84
  • 84

Certificado energético

  • No disponible
  • A
  • A
  • Etiqueta de calificación energética
    ESCALA DE LA CALIFICACIÓN ENERGÉTICA

    Consumo de energía

    kW h m² / año

    Emisiones

    kg CO₂ m² / año

    A más eficiente
    B
    C
    D
    E
    F
    G menos eficiente
    Esta información se irá actualizando diariamente
Aire acondicionado

Precio

Precio del inmueble:
344.000 €
Precio por m²:
4.095 €/m²
Avisame si baja de precio
Te avisaremos si el precio del inmueble baja.
Calcular hipoteca bancaria
Simulador de hipotecas CaixaBank

Puedes simular la cuota con la calculadora de hipotecas CaixaBank.

Ubicación

Málaga, Mijas
Dirección aproximada por deseo del anunciante.
Information Image
Equipa tu vivienda con Facilitea

¿Ya elegiste tu hogar ideal? Equipa tu hogar con todo lo que necesitas para convertirlo en un espacio acogedor y funcional.

Contactar
Completa el formulario para contactar con el anunciante y ver su número de teléfono.
Selecciona el motivo de contacto
Solicitar información del inmueble y financiación
Solicitar información del inmueble
Otro motivo de contacto
Añadir comentario (opcional)

Facilitea comunicará los datos facilitados al anunciante del inmueble para atender su solicitud. El anunciante los tratará en calidad de responsable y le informará de su tratamiento.

Si lo prefieres, también puedes llamarlo al siguiente número de teléfono.
952053777
Ofrecido por INVESTCASA IURIS S.L.
También te puede gustar