Ofrecido por Sara Enriquez Snodgrass

Venta, Piso, Madrid

Madrid, Madrid Mostrar en mapa
1.225.000 €
3 habs.
2 baños
174
7 Planta
Ubicado estratégicamente en el prestigioso Paseo de la Castellana, a pocos pasos del complejo de las Cuatro Torres, esta vivienda ofrece una oportunidad única de vivir en el corazón financiero y empresarial de la ciudad.

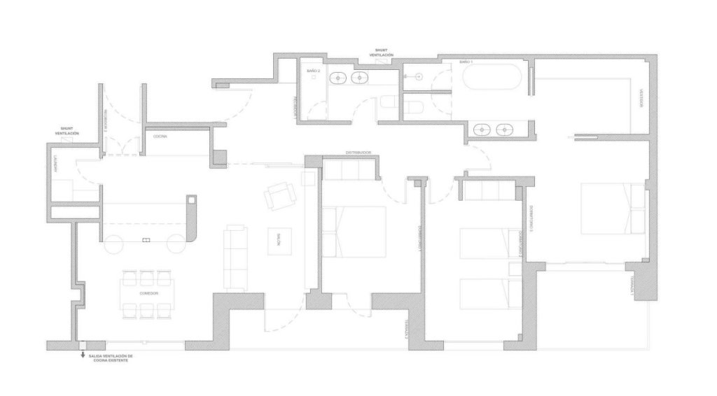
Este piso en una 7ª planta exterior con 174 m² , esta siendo reformado con un diseño moderno y funcional, con acabados de alta calidad. Sus 3 habitaciones dobles, con sus armarios empotrados son un verdadero oasis de tranquilidad. Destacamos la habitación principal que cuenta con un amplio vestidor, un baño privado y una terraza privada, ideal para disfrutar de momentos de paz y de vistas abiertas a la Sierra de Madrid.

Además, el piso dispone de un segundo baño completo, una práctica zona de lavandería y una espectacular área social integrada que une la cocina-comedor con el salón. Este espacio abierto y diáfano es perfecto para la vida moderna y para recibir invitados.

El edificio, cuenta con servicio de portero, garantiza tu seguridad y comodidad. La entrega de la vivienda está prevista para el 15 de noviembre. El plano muestra la distribución tras la reforma (no vinculante) y los renders una posible decoración del salón y comedor.

Características generales

  • Madrid
  • Piso
  • 7
  • 3
  • 2
  • Sin amueblar
  • Americana
  • 1967

Especificaciones técnicas

  • 174
  • Calefacción central
  • Calefacción de gas

Certificado energético

  • F
  • No disponible
  • No disponible
  • Etiqueta de calificación energética
    ESCALA DE LA CALIFICACIÓN ENERGÉTICA

    Consumo de energía

    kW h m² / año

    Emisiones

    kg CO₂ m² / año

    A más eficiente
    B
    C
    D
    E
    F
    G menos eficiente
    Esta información se irá actualizando diariamente
Puerta segura
Ascensor
Trastero
Aire acondicionado

Precio

Precio del inmueble:
1.225.000 €
Precio por m²:
7.040 €/m²
Avisame si baja de precio
Te avisaremos si el precio del inmueble baja.
Calcular hipoteca bancaria
Simulador de hipotecas CaixaBank

Puedes simular la cuota con la calculadora de hipotecas CaixaBank.

Ubicación

Madrid, Madrid, P.º de la Castellana, 255, Tetuán, 28046 Madrid, España
Dirección aproximada por deseo del anunciante.
Information Image
Equipa tu vivienda con Facilitea

¿Ya elegiste tu hogar ideal? Equipa tu hogar con todo lo que necesitas para convertirlo en un espacio acogedor y funcional.

Contactar
Completa el formulario para contactar con el anunciante y ver su número de teléfono.
Selecciona el motivo de contacto
Solicitar información del inmueble y financiación
Solicitar información del inmueble
Otro motivo de contacto
Añadir comentario (opcional)

Facilitea comunicará los datos facilitados al anunciante del inmueble para atender su solicitud. El anunciante los tratará en calidad de responsable y le informará de su tratamiento.

Si lo prefieres, también puedes llamarlo al siguiente número de teléfono.
683631721
Ofrecido por Sara Enriquez Snodgrass
También te puede gustar