Ofrecido por SOLVIA SERVICIOS INMOBILIARIOS SAU

Venta, Piso, Jerez de la Frontera

Cádiz, Jerez de la Frontera Mostrar en mapa
32.000 € 24.400 €
3 habs.
1 baños
74
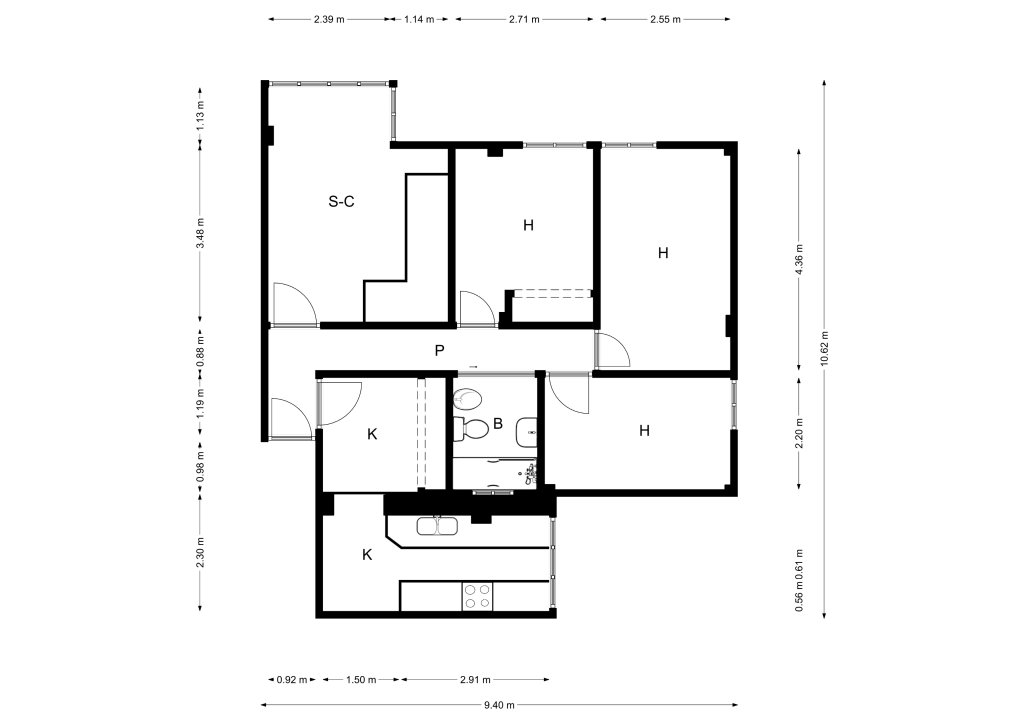
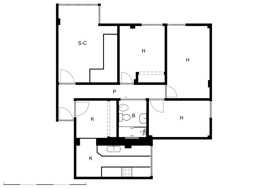
Excelente piso de tres dormitorios y un baño. Se encuentra en la planta cuarta de un edificio residencial de cinco plantas sobre rasante. Sin ascensor. Situado en el municipio de Jerez de la Frontera. La vivienda se distribuye en tres dormitorios con armarios empotrados, amplio salón-comedor, cocina independiente y un cuarto de baño. La superficie construida de la vivienda es de 74 m² aproximadamente. Cuenta con cocina equipada con muebles altos y bajos, vitrocerámica y campana extractora. Se encuentra en el barrio de la Barriada de la Plata, próximo a la estación de tren Jerez de la Frontera. En su entorno existen viviendas plurifamiliares de similares características. La zona cuenta con todo tipo de servicios básicos, tales como, sanitarios, educativos, restaurantes, supermercados, comercios, amplias zonas verdes, etc. Además el municipio dispone de todo tipo de transporte público como autobuses, tranvía, estación de tren, aeropuerto, etc. Dispone de buenas conexiones con todo tipo de carreteras, autovías y autopista. Vivienda de Protección Oficial. El potencial inquilino deberá estar inscrito en el registro de demandantes de alquiler. La renta mensual actual de este inmueble es de 388,69€, siendo la fecha de vencimiento del contrato 22/11/2028. A fecha de publicación del presente anuncio el arrendatario se encuentra al corriente de pago de sus obligaciones siendo la renta estimada y la fecha de vencimiento (sin perjuicio de las prórrogas que conforme a ley correspondan) la que se hace constar en el anuncio. Las rentas devengadas hasta la fecha de transmisión corresponderán al vendedor y las que se devenguen a partir de la transmisión corresponderán al comprador.

Características generales

  • Jerez de la Frontera
  • Piso
  • 3
  • 1

Especificaciones técnicas

  • 74
  • 74

Certificado energético

  • No disponible
  • No disponible
  • No disponible
  • Etiqueta de calificación energética
    ESCALA DE LA CALIFICACIÓN ENERGÉTICA

    Consumo de energía

    kW h m² / año

    Emisiones

    kg CO₂ m² / año

    A más eficiente
    B
    C
    D
    E
    F
    G menos eficiente
    Esta información se irá actualizando diariamente

Precio

Precio del inmueble:
32.000 €
Precio por m²:
432 €/m²
Avisame si baja de precio
Te avisaremos si el precio del inmueble baja.
Calcular hipoteca bancaria
Simulador de hipotecas CaixaBank

Puedes simular la cuota con la calculadora de hipotecas CaixaBank.

Ubicación

Cádiz, Jerez de la Frontera
Dirección aproximada por deseo del anunciante.
Information Image
Equipa tu vivienda con Facilitea

¿Ya elegiste tu hogar ideal? Equipa tu hogar con todo lo que necesitas para convertirlo en un espacio acogedor y funcional.

Contactar
Selecciona el motivo de contacto
Solicitar información del inmueble y financiación
Solicitar información del inmueble
Otro motivo de contacto
Añadir comentario (opcional)

Facilitea comunicará los datos facilitados al anunciante del inmueble para atender su solicitud. El anunciante los tratará en calidad de responsable y le informará de su tratamiento.

Ofrecido por SOLVIA SERVICIOS INMOBILIARIOS SAU