Ofrecido por Mayrasa 2013, SL

Venta, Piso, Hondón de las Nieves

Alicante, Hondón de las Nieves Mostrar en mapa
250.000 €
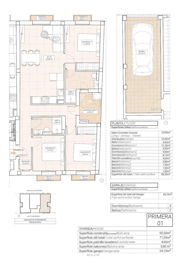
3 habs.
2 baños
92
Apartamentos modernos con impresionantes vistas a los viñedos en Hondón de las Nieves

Elegantes apartamentos de nueva construcción en un apacible valle
Descubra estos modernos apartamentos en Hondón de las Nieves, una encantadora localidad enclavada en un pintoresco valle rodeado de olivares y almendros. Este exclusivo complejo residencial ofrece apartamentos de 1, 2 y 3 dormitorios, todos ellos diseñados para proporcionar confort, eficiencia energética e impresionantes vistas a los viñedos del Vinalopó.

Situada en la comarca del Vinalopó Medio, esta tranquila zona es perfecta para quienes buscan un estilo de vida mediterráneo relajado con fácil acceso a la naturaleza y a los servicios esenciales.

Características de alta calidad para una vida moderna
Cada apartamento está construido con materiales y acabados de primera calidad, garantizando tanto estilo como funcionalidad:

Amplios interiores con distribuciones diáfanas.
Cocinas totalmente amuebladas con encimeras de granito.
Baños de alta gama con cisternas empotradas y sanitarios de primera calidad.
Diseño energéticamente eficiente con calefacción de agua por aerotermia.
Preinstalación de aire acondicionado por conductos para mayor comodidad durante todo el año.
Ventanas de aluminio con doble acristalamiento y aislamiento térmico.
Puerta de entrada de seguridad reforzada para mayor tranquilidad.
Garaje privado en la planta baja incluido.
Acceso en ascensor para mayor comodidad.
Además, los paneles solares están instalados en la azotea para mejorar la eficiencia energética y reducir los costos de servicios públicos.

Ubicación privilegiada en Hondón de las Nieves
Hondón de las Nieves es un encantador pueblo español conocido por su producción de vino, su cultura tradicional y sus paisajes pintorescos. La ciudad cuenta con edificios históricos, mercados locales y senderos naturales, por lo que es un lugar fantástico tanto para la vida permanente y retiros de vacaciones.

Esta nueva promoción está situada en una zona tranquila pero bien comunicada, que ofrece fácil acceso a servicios esenciales y lugares clave:

Aeropuerto de Alicante - 30 km (30 minutos en coche)
Playas de Alicante - 35 km (35 minutos en coche)
Elche - 20 km (20 minutos en coche)
Parque Natural de Crevillente - 10 km (15 minutos en coche)
Campos de Golf - 25 km (30 minutos en coche)

Su hogar perfecto en el corazón de la campiña alicantina
Disfrute de la tranquilidad del Valle del Hondón mientras permanece cerca de las vibrantes ciudades de Alicante y Elche. Tanto si busca una casa de vacaciones, una inversión inmobiliaria o un lugar tranquilo para vivir todo el año, estos modernos apartamentos son la elección perfecta.

Póngase en contacto con nosotros hoy mismo para obtener más información o para concertar una visita.

Características generales

  • Hondón de las Nieves
  • Piso
  • 3
  • 2

Especificaciones técnicas

  • 92
  • 92

Certificado energético

  • No disponible
  • B
  • B
  • Etiqueta de calificación energética
    ESCALA DE LA CALIFICACIÓN ENERGÉTICA

    Consumo de energía

    kW h m² / año

    Emisiones

    kg CO₂ m² / año

    A más eficiente
    B
    C
    D
    E
    F
    G menos eficiente
    Esta información se irá actualizando diariamente
Ascensor
Piscina común
Aire acondicionado

Precio

Precio del inmueble:
250.000 €
Precio por m²:
2.717 €/m²
Avisame si baja de precio
Te avisaremos si el precio del inmueble baja.
Calcular hipoteca bancaria
Simulador de hipotecas CaixaBank

Puedes simular la cuota con la calculadora de hipotecas CaixaBank.

Ubicación

Alicante, Hondón de las Nieves
Dirección aproximada por deseo del anunciante.
Information Image
Equipa tu vivienda con Facilitea

¿Ya elegiste tu hogar ideal? Equipa tu hogar con todo lo que necesitas para convertirlo en un espacio acogedor y funcional.

Contactar
Completa el formulario para contactar con el anunciante y ver su número de teléfono.
Selecciona el motivo de contacto
Solicitar información del inmueble y financiación
Solicitar información del inmueble
Otro motivo de contacto
Añadir comentario (opcional)

Facilitea comunicará los datos facilitados al anunciante del inmueble para atender su solicitud. El anunciante los tratará en calidad de responsable y le informará de su tratamiento.

Si lo prefieres, también puedes llamarlo al siguiente número de teléfono.
966263013
Ofrecido por Mayrasa 2013, SL
También te puede gustar