Ofrecido por Hermanos Ramon y Emilio Rodriguez de Trujillo, S.l

Venta, Piso, Cádiz

Cádiz, Cádiz Mostrar en mapa
280.000 €
3 habs.
1 baños
127
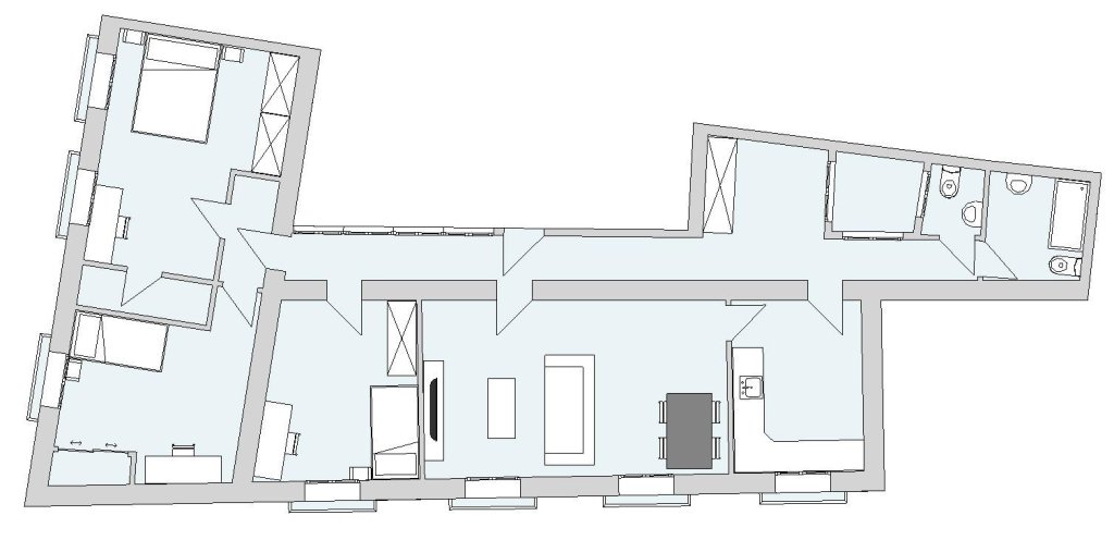
Magnífica y amplia vivienda situada en las inmediaciones de la plaza San Antonio, en pleno centro de la ciudad, próximo a las universidades y a las principales zonas comerciales de la ciudad.~ La vivienda hace esquina y todas las estancias son exteriores. Es una primera planta sin ascensor. La calle de acceso a la finca está limitada al tráfico de vehículos que estacionan en garajes privados.~ La vivienda consta de amplio salón comedor con dos cierros a la calle. La cocina independiente y con mucho espacio. Encontramos una estancia abierta junto a la cocina donde podría colocarse otro comedor. Consta de baño completo, y aseo. Los tres dormitorios son dobles, uno de ellos con armario empotrado, y el principal con dos balcones a la calle. Por último, junto al comedor encontramos un patio de uso privativo.~ ~ Si está interesado en esta vivienda pero tiene que vender, contacte con nosotros, le ayudamos a encontrar comprador para su vivienda.~ ~ * Gastos de compraventa, impuestos y honorarios de la agencia no incluidos en el precio.

Características generales

  • Cádiz
  • Piso
  • 3
  • 1
  • Totalmente amueblado

Especificaciones técnicas

  • 127
  • 127

Certificado energético

  • No disponible
  • E 84.71 kWh/m² año
  • E 17.41 kg CO2/m² año
  • Etiqueta de calificación energética
    ESCALA DE LA CALIFICACIÓN ENERGÉTICA

    Consumo de energía

    kW h m² / año

    Emisiones

    kg CO₂ m² / año

    A más eficiente
    B
    C
    D
    E
    84.7
    17.4
    F
    G menos eficiente
    Esta información se irá actualizando diariamente
Trastero

Precio

Precio del inmueble:
280.000 €
Precio por m²:
2.205 €/m²
Avisame si baja de precio
Te avisaremos si el precio del inmueble baja.
Calcular hipoteca bancaria
Simulador de hipotecas CaixaBank

Puedes simular la cuota con la calculadora de hipotecas CaixaBank.

Ubicación

Cádiz, Cádiz
Dirección aproximada por deseo del anunciante.
Information Image
Equipa tu vivienda con Facilitea

¿Ya elegiste tu hogar ideal? Equipa tu hogar con todo lo que necesitas para convertirlo en un espacio acogedor y funcional.

Contactar
Completa el formulario para contactar con el anunciante y ver su número de teléfono.
Selecciona el motivo de contacto
Solicitar información del inmueble y financiación
Solicitar información del inmueble
Otro motivo de contacto
Añadir comentario (opcional)

Facilitea comunicará los datos facilitados al anunciante del inmueble para atender su solicitud. El anunciante los tratará en calidad de responsable y le informará de su tratamiento.

Si lo prefieres, también puedes llamarlo al siguiente número de teléfono.
956258606
Ofrecido por Hermanos Ramon y Emilio Rodriguez de Trujillo, S.l