Ofrecido por INVESTCASA IURIS S.L.

Venta, Piso, Benalmádena

Málaga, Benalmádena Mostrar en mapa
418.000 € 22.000 €
3 habs.
2 baños
114
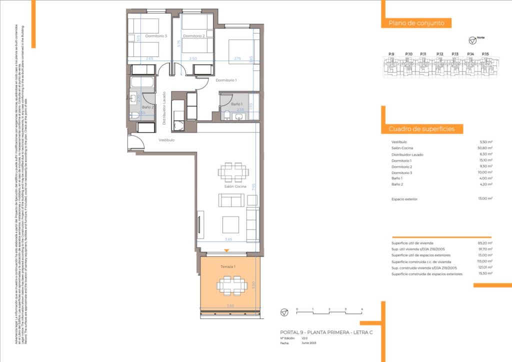
Espectacular ÁTICO de 3 dormitorios y 2 baños [114 m2 (vivienda) + 16 m2 (terraza)] en Benalmádena Pueblo, una zona residencial multicultural y multilingüe con un ambiente cosmopolita, cerca del centro y perfectamente comunicada por carretera y transporte público. La vivienda cuenta con acabados de primera calidad. Aire acondicionado instalado. Calefacción por aerotermia para agua caliente. Cocina totalmente equipada con electrodomésticos. El complejo residencial incluye zonas ajardinadas con piscina, gimnasio, sauna y zona chill-out. 2 garajes y trastero. 440.000 € + Iva (10%). Entrega Septiembre 2.025

Características generales

  • Benalmádena
  • Piso
  • 3
  • 2

Especificaciones técnicas

  • 114
  • 114

Certificado energético

  • No disponible
  • B
  • B
  • Etiqueta de calificación energética
    ESCALA DE LA CALIFICACIÓN ENERGÉTICA

    Consumo de energía

    kW h m² / año

    Emisiones

    kg CO₂ m² / año

    A más eficiente
    B
    C
    D
    E
    F
    G menos eficiente
    Esta información se irá actualizando diariamente
Aire acondicionado

Precio

Precio del inmueble:
418.000 €
Precio por m²:
3.667 €/m²
Avisame si baja de precio
Te avisaremos si el precio del inmueble baja.
Calcular hipoteca bancaria
Simulador de hipotecas CaixaBank

Puedes simular la cuota con la calculadora de hipotecas CaixaBank.

Ubicación

Málaga, Benalmádena
Dirección aproximada por deseo del anunciante.
Information Image
Equipa tu vivienda con Facilitea

¿Ya elegiste tu hogar ideal? Equipa tu hogar con todo lo que necesitas para convertirlo en un espacio acogedor y funcional.

Contactar
Completa el formulario para contactar con el anunciante y ver su número de teléfono.
Selecciona el motivo de contacto
Solicitar información del inmueble y financiación
Solicitar información del inmueble
Otro motivo de contacto
Añadir comentario (opcional)

Facilitea comunicará los datos facilitados al anunciante del inmueble para atender su solicitud. El anunciante los tratará en calidad de responsable y le informará de su tratamiento.

Si lo prefieres, también puedes llamarlo al siguiente número de teléfono.
952053777
Ofrecido por INVESTCASA IURIS S.L.
También te puede gustar