Ofrecido por Casas Rioja y Navarra

Venta, Piso, Autol

La Rioja, Autol Mostrar en mapa
214.000 €
3 habs.
2 baños
102
Nueva promoción de viviendas en Autol – Calle Huertas

Después de más de 13 años sin construcciones de obra nueva en Autol, llega una oportunidad única para estrenar vivienda.

Esta nueva promoción contará con dos portales (Portal 1 y Portal 2) y un total de 25 viviendas, diseñadas para ofrecer comodidad, amplitud y una excelente ubicación.

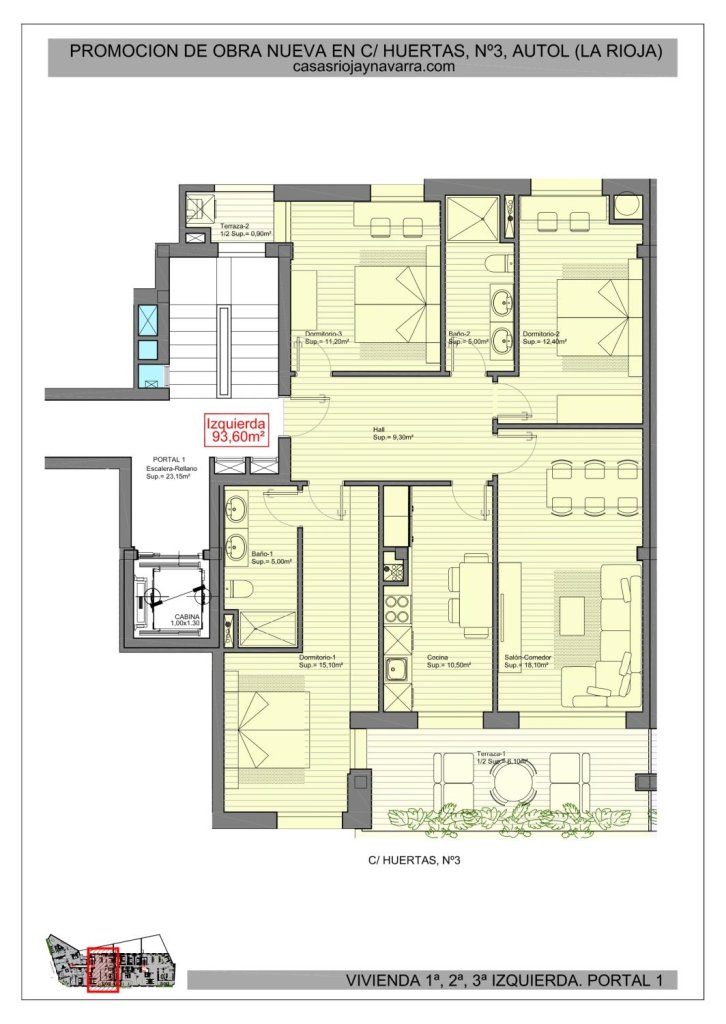
En esta ocasión presentamos la vivienda 1º izquierda del Portal 1, una opción ideal para quienes buscan una vivienda moderna y funcional.

Las viviendas 2º izquierda y 3º izquierda cuentan con la misma distribución, manteniendo las mismas características y espacios, aunque el precio se incrementa en función de la altura.

Si llevabas tiempo esperando una vivienda nueva en Autol, esta puede ser tu oportunidad.

Para más información o para resolver cualquier duda, ponte en contacto con nosotros.

Características generales

  • Autol
  • Piso
  • 3
  • 2

Especificaciones técnicas

  • 102
  • 93
  • 102

Certificado energético

  • No disponible
  • No disponible
  • No disponible
  • Etiqueta de calificación energética
    ESCALA DE LA CALIFICACIÓN ENERGÉTICA

    Consumo de energía

    kW h m² / año

    Emisiones

    kg CO₂ m² / año

    A más eficiente
    B
    C
    D
    E
    F
    G menos eficiente
    Esta información se irá actualizando diariamente
Sala de lavandería independiente
Ascensor
Trastero
Aire acondicionado

Precio

Precio del inmueble:
214.000 €
Precio por m²:
2.098 €/m²
Avisame si baja de precio
Te avisaremos si el precio del inmueble baja.
Calcular hipoteca bancaria
Simulador de hipotecas CaixaBank

Puedes simular la cuota con la calculadora de hipotecas CaixaBank.

Ubicación

La Rioja, Autol
Dirección aproximada por deseo del anunciante.
Information Image
Equipa tu vivienda con Facilitea

¿Ya elegiste tu hogar ideal? Equipa tu hogar con todo lo que necesitas para convertirlo en un espacio acogedor y funcional.

Contactar
Completa el formulario para contactar con el anunciante y ver su número de teléfono.
Selecciona el motivo de contacto
Solicitar información del inmueble y financiación
Solicitar información del inmueble
Otro motivo de contacto
Añadir comentario (opcional)

Facilitea comunicará los datos facilitados al anunciante del inmueble para atender su solicitud. El anunciante los tratará en calidad de responsable y le informará de su tratamiento.

Si lo prefieres, también puedes llamarlo al siguiente número de teléfono.
941042176
Ofrecido por Casas Rioja y Navarra