En la zona de Sagunto, a escasos metros de la Avda. Carlos III.~~El proyecto se encuentra en ejecución, por lo que sin poder afirmar con total seguridad, estaríamos hablando de fecha estimada de entrega y finalización en julio de 2026.~~Para optar a la compra de esta promoción, se propone al inversor los siguiente forma de pago:~- 30% en el momento inicial (firma de contrato de ARRAS).~- 30% a mitad del proceso~- y el resto del PVP en el momento de la entrega de la promoción.~~La vivienda se entrega vacía y tienen la posibilidad de entregarse con la cocina completa con electrodomésticos por 5.000 € y con mobiliario completo según plano por 7.000 €. Los metros son aproximados por estar en fase de proyecto y pueden sufrir modificaciones. ~~Cabe la posibilidad de “entrega llave en mano”, esto consiste en la posibilidad de entregar al inversor las viviendas amuebladas, arrendadas (con seguro “Alquiler seguro”) y con una rentabilidad del 7 % aproximadamente.~~...~En cumplimiento de las obligaciones de información previstas en la Ley 10/2025, de 28 de diciembre, de servicios de atención a la clientela y transparencia, así como en la normativa sectorial vigente, el precio indicado no incluye los gastos e impuestos inherentes a la adquisición, los cuales se desglosan estimados o con posibilidad de calcularlos a continuación; los gastos más ajustados serán dados en el D.I.A. en la visita a inmuebles, o antes.~*Gastos de Notaría: La Minuta se calculará según al arancel notarial oficial: Anexo I, del Real Decreto 1426/1989, de 17 de noviembre. Enlace: https://notariared.com/calculadora-gastos-compra-vivienda/~*Gastos de Registro de la Propiedad: La inscripción se facturará según el arancel oficial: ANEXO I, del Real Decreto 1427/1989, de 17 de noviembre. Igual enlace anterior ~*Gastos de Gestión (Gestoría): Los honorarios por la tramitación administrativa, liquidación de impuestos e inscripción registral ascienden de forma estimativa a [363 € aprox.] (IVA incluido), aunque depende de cada caso, y su dificultad. ~*Honorarios Agencia del Vendedor: incluidos en el PVP. ~*Honorarios Agencia del comprador: La agencia prestará los servicios de información, asesoramiento y acompañamiento previstos en el Encargo de Servicios y en el D.I.A. Si solicita servicios adicionales o personalizados, sus honorarios serán informados previamente, de forma individualizada y por escrito, conforme a la libertad de pactos y a la normativa vigente. ~*Si necesita Financiación, su banco le informará~*Impuesto sobre Transmisiones Patrimoniales (ITP): Se aplicará el tipo impositivo vigente en Andalucía (generalmente el 7%, sin perjuicio de tipos reducidos del 6%. 3,5%, etc, aplicables según las circunstancias personales del comprador o las características del inmueble). El impuesto se devenga sobre el superior entre: 1.- Valor de Referencia de Catastro; y 2.- Precio de venta. Puede calcular su situación personal en el portal oficial de la A.T. de Andalucia. enlace: https://www.juntadeandalucia.es/organismos/economiahaciendayfondoseuropeos/areas/tributos-juego/tributos/paginas/impuesto
Características generales
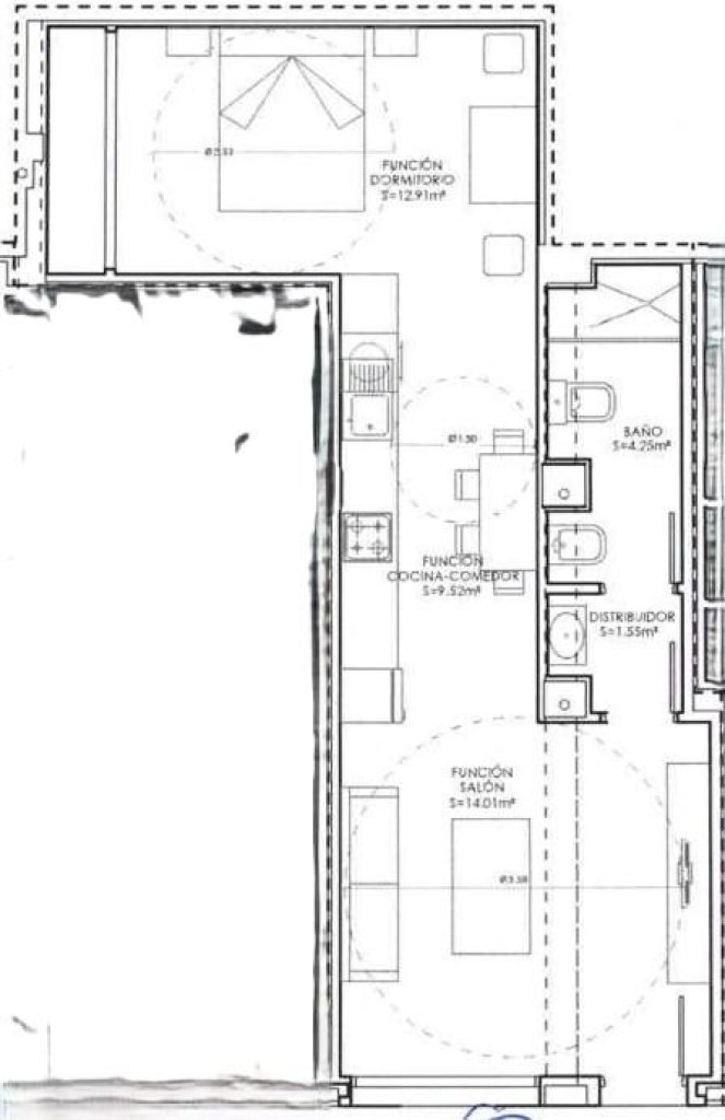
Córdoba
Estudio
1
1
Especificaciones técnicas
61m²
61m²
Certificado energético
No disponible
No disponible
No disponible
Etiqueta de calificación energética
ESCALA DE LA CALIFICACIÓN ENERGÉTICA
Consumo de energía
kW h m² / año
Emisiones
kg CO₂ m² / año
Amás eficiente
B
C
D
E
F
Gmenos eficiente
Esta información se irá actualizando diariamente
Aire acondicionado
Precio
Precio del inmueble:
97.700 €
Precio por m²:
1.602 €/m²
Avisame si baja de precio
Te avisaremos si el precio del inmueble baja.
Simulador de hipotecas CaixaBank
Puedes simular la cuota con la calculadora de hipotecas CaixaBank.
Ubicación
Córdoba, Córdoba
Dirección aproximada por deseo del anunciante.
Equipa tu vivienda con Facilitea
¿Ya elegiste tu hogar ideal? Equipa tu hogar con todo lo que necesitas para convertirlo en un espacio acogedor y funcional.