Ofrecido por ALEJANDRO ROBUTTI SL

Venta, Casa rústica, Girona

795.000 €
4 habs.
3 baños
269
¡Impresionante casa independiente en Sant Antoni de Calonge!

Esta hermosa residencia, situada a solo unos metros de la playa, es una verdadera joya en la costa. Con una distribución en tres plantas, ofrece un estilo de vida inigualable.

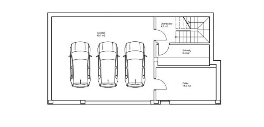
Planta sótano: Un espacioso garaje con capacidad para tres coches, ideal para proteger tus vehículos de las inclemencias del tiempo. Además, este nivel alberga una sala de máquinas que garantiza el funcionamiento eficiente de la casa.

Planta baja: Un espacio excepcional para la vida cotidiana y el entretenimiento. Disfruta de un amplio salón comedor con acceso directo a un hermoso jardín con piscina, perfecto para refrescarte en los días soleados. La espaciosa cocina, equipada con todas las comodidades, es el lugar ideal para preparar deliciosas comidas. Además, en esta planta encontrarás un dormitorio doble y un baño para mayor comodidad.

Primera planta: El área de descanso, con tres dormitorios dobles que ofrecen un confort excepcional. Uno de los dormitorios es una suite con su propio vestidor, proporcionando un rincón privado de lujo.

Exterior: Un jardín con piscina para disfrutar del clima mediterráneo.

La casa cuenta con domótica avanzada, persianas eléctricas, cerramientos de alta calidad con gran cámara de aire y placas fotovoltaicas. Disfruta de un confort térmico excepcional durante todo el año gracias a la avanzada tecnología de aerotermia por conductos, que proporciona tanto calor como frío a través de una red de tubos ocultos en el techo o las paredes de la vivienda.

Características generales

  • Casa rústica
  • 4
  • 3

Especificaciones técnicas

  • 269
  • 400
  • 269

Certificado energético

  • No disponible
  • No disponible
  • No disponible
  • Etiqueta de calificación energética
    ESCALA DE LA CALIFICACIÓN ENERGÉTICA

    Consumo de energía

    kW h m² / año

    Emisiones

    kg CO₂ m² / año

    A más eficiente
    B
    C
    D
    E
    F
    G menos eficiente
    Esta información se irá actualizando diariamente

Precio

Precio del inmueble:
795.000 €
Precio por m²:
2.955 €/m²
Avisame si baja de precio
Te avisaremos si el precio del inmueble baja.
Calcular hipoteca bancaria
Simulador de hipotecas CaixaBank

Puedes simular la cuota con la calculadora de hipotecas CaixaBank.

Ubicación

Girona
Dirección aproximada por deseo del anunciante.
Information Image
Equipa tu vivienda con Facilitea

¿Ya elegiste tu hogar ideal? Equipa tu hogar con todo lo que necesitas para convertirlo en un espacio acogedor y funcional.

Contactar
Completa el formulario para contactar con el anunciante y ver su número de teléfono.
Selecciona el motivo de contacto
Solicitar información del inmueble y financiación
Solicitar información del inmueble
Otro motivo de contacto
Añadir comentario (opcional)

Facilitea comunicará los datos facilitados al anunciante del inmueble para atender su solicitud. El anunciante los tratará en calidad de responsable y le informará de su tratamiento.

Si lo prefieres, también puedes llamarlo al siguiente número de teléfono.
+34972819894
Ofrecido por ALEJANDRO ROBUTTI SL