Ofrecido por MODESTO L. BELTRAN SL

Venta, Casa, L' Alcora

Castellón, L' Alcora Mostrar en mapa
195.000 €
12 habs.
4 baños
376
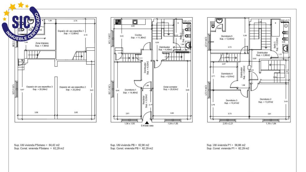
Oportunidad única en la zona centrica de Alcora: se presenta esta impresionante casa-edificio que destaca por su amplitud y versatilidad.~Con varias plantas más un sótano equipado, con no una, sino dos cocinas funcionales; es perfecta tanto para grandes familias como para aquellos inversionistas interesados en alquilar habitaciones. ~La propiedad cuenta con luminosos salones-comedores que invitan a disfrutar del espacio compartido junto a familiares o amigos. ~El inmueble dispone de un total de doce acogedoras habitaciones – algunas equipadas con armarios empotrados – así como cuatro amplios baños completos y un aseo adicional que garantizan comodidad e intimidad. ~Idealmente situada cerca del centro urbano, ofrece acceso fácil a servicios esenciales y actividades recreativas locales.~Es importante mencionar que la superficie indicada corresponde a mediciones técnicas reales; las cifras registrales pueden variar notablemente debido a discrepancias catastrales existentes. Para cualquier consulta relacionada sobre características específicas u documentación referida al inmueble -que actualmente tiene doble referencia catastral- le recomendamos contactar directamente nuestra inmobiliaria.~Este inmueble es en exclusiva, con lo que le facilitamos cualquier información sobre la vivienda. Por este motivo, solicitamos no molesten al propietario, ocupantes de la propiedad o vecinos~En todos los casos los precios expuestos son más impuestos y gastos derivados de la transmisión del inmueble.

Características generales

  • L' Alcora
  • 12
  • 4

Especificaciones técnicas

  • 376
  • 85
  • 376

Certificado energético

  • No disponible
  • F 230.00 kWh/m² año
  • E 43.00 kg CO2/m² año
  • Etiqueta de calificación energética
    ESCALA DE LA CALIFICACIÓN ENERGÉTICA

    Consumo de energía

    kW h m² / año

    Emisiones

    kg CO₂ m² / año

    A más eficiente
    B
    C
    D
    E
    43.0
    F
    230.0
    G menos eficiente
    Esta información se irá actualizando diariamente
Sala de lavandería independiente
Trastero

Precio

Precio del inmueble:
195.000 €
Precio por m²:
519 €/m²
Avisame si baja de precio
Te avisaremos si el precio del inmueble baja.
Calcular hipoteca bancaria
Simulador de hipotecas CaixaBank

Puedes simular la cuota con la calculadora de hipotecas CaixaBank.

Ubicación

Castellón, L' Alcora
Dirección aproximada por deseo del anunciante.
Information Image
Equipa tu vivienda con Facilitea

¿Ya elegiste tu hogar ideal? Equipa tu hogar con todo lo que necesitas para convertirlo en un espacio acogedor y funcional.

Contactar
Completa el formulario para contactar con el anunciante y ver su número de teléfono.
Selecciona el motivo de contacto
Solicitar información del inmueble y financiación
Solicitar información del inmueble
Otro motivo de contacto
Añadir comentario (opcional)

Facilitea comunicará los datos facilitados al anunciante del inmueble para atender su solicitud. El anunciante los tratará en calidad de responsable y le informará de su tratamiento.

Si lo prefieres, también puedes llamarlo al siguiente número de teléfono.
964310218
Ofrecido por MODESTO L. BELTRAN SL