Ofrecido por Grupo Inmobiliaria 2030, S.L

Venta, Casa independiente, Tomiño

Pontevedra, Tomiño Mostrar en mapa
420.000 €
5 habs.
3 baños
418
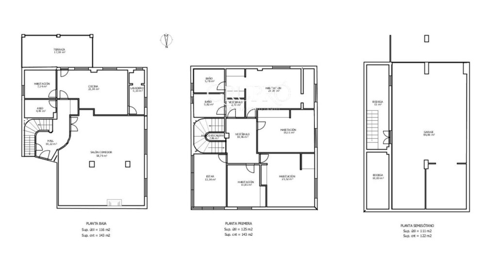
Magnífico y exclusivo chalet disponible en Tebra.Vendemos casa unifamiliar de 418 m2 construidos (352 m2 útiles) situada en el término de Samuelle-Tebra (Tomiño), en un entorno natural tranquilo, pero muy bien comunicado a la vez, al estar a escasos metros de la PO-344. Esta comarca es muy conocida tanto por su  mirador como por su castillo. Dispone además de un colegio público, también situado a muy pocos metros. Se trata sin duda, de un entorno natural de gran belleza, de carácter marcadamente rural, pero con todas las comodidades necesarias a mano, y las mejores comunicaciones.La propiedad data de 1980 y consta de sótano y 2 plantas, orientada a sus 4 fachadas. La construcción destaca por su esmerado diseño y sus características líneas, creación todo ello, del reconocido y prestigioso arquitecto Xosé Bar Boo.La distribución actual es la siguiente (ver plano adjunto):SÓTANO:-Cubierto, con un cómodo espacio de más de 80 m2 con capacidad para varios coches, así como una bodega.PLANTA BAJA:-Salón comedor de 58 m2, con chimenea;-Cocina amplia, equipada, y con cuarto lavadero separado;-Habitación en planta baja, ideal como despacho, o para invitados;-1 baño completo;-Terraza exterior de 18 m2, con agradables vistas a toda la finca.PLANTA PRIMERA:-4 habitaciones, amplias y exteriores;-1 sala de estar, completamente acristalada;-2 baños completos, uno de ellos en suitte, y con vestidor;-Vestíbulo y pasillo.La casa cuenta con una buena distribución, donde todos sus espacios son amplios y está bien ubicados, de una forma lógica y aprovechando la mayor cantidad de luz existente, según las horas del día. El estado de conservación general de la es bueno, por lo que se puede considerar como una vivienda para entrar a vivir, al margen de las actualizaciones o mejoras que cada uno pudiera desear.Dispone además de calefacción central y doble ventanal en toda la casa.La parcela, con un total de 3379 m2, permite la instalación de una piscina, así como disponer de distintas zonas de ocio o esparcimiento, jardines o huerta, todo ello, según el gusto o las necesidades de cada comprador.Contacte con nosotros para más información o visita.Consulte también nuestra página web.Información al consumidor: (1) El precio indicado corresponde exclusivamente al inmueble y no incluye impuestos ni gastos derivados de la compraventa (ITP, notaría, registro u otros que pudieran corresponder conforme a la normativa vigente). (2) El tipo aplicable del Impuesto sobre Transmisiones Patrimoniales en Galicia puede variar en función de las circunstancias personales y fiscales del comprador. (3) Las superficies y características del inmueble se corresponden con la información facilitada por la propiedad, con la documentación disponible y/o, en su caso, con mediciones o planos de carácter orientativo, pudiendo ser objeto de comprobación documental.

Características generales

  • Tomiño
  • Casa independiente
  • 5
  • 3

Especificaciones técnicas

  • 418
  • 3,379
  • 418

Certificado energético

  • No disponible
  • No disponible
  • No disponible
  • Etiqueta de calificación energética
    ESCALA DE LA CALIFICACIÓN ENERGÉTICA

    Consumo de energía

    kW h m² / año

    Emisiones

    kg CO₂ m² / año

    A más eficiente
    B
    C
    D
    E
    F
    G menos eficiente
    Esta información se irá actualizando diariamente

Precio

Precio del inmueble:
420.000 €
Precio por m²:
1.005 €/m²
Avisame si baja de precio
Te avisaremos si el precio del inmueble baja.
Calcular hipoteca bancaria
Simulador de hipotecas CaixaBank

Puedes simular la cuota con la calculadora de hipotecas CaixaBank.

Ubicación

Pontevedra, Tomiño
Dirección aproximada por deseo del anunciante.
Information Image
Equipa tu vivienda con Facilitea

¿Ya elegiste tu hogar ideal? Equipa tu hogar con todo lo que necesitas para convertirlo en un espacio acogedor y funcional.

Contactar
Completa el formulario para contactar con el anunciante y ver su número de teléfono.
Selecciona el motivo de contacto
Solicitar información del inmueble y financiación
Solicitar información del inmueble
Otro motivo de contacto
Añadir comentario (opcional)

Facilitea comunicará los datos facilitados al anunciante del inmueble para atender su solicitud. El anunciante los tratará en calidad de responsable y le informará de su tratamiento.

Si lo prefieres, también puedes llamarlo al siguiente número de teléfono.
886020700
Ofrecido por Grupo Inmobiliaria 2030, S.L