Ofrecido por Sunsol Properties And Reforms SL

Venta, Casa, Coín

Málaga, Coín Mostrar en mapa
119.000 €
2 habs.
2 baños
120
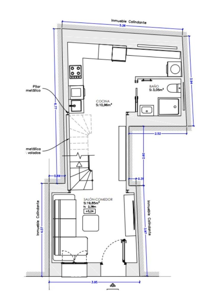
Vivienda a reformar por completo en Coín, con licencia de obra en vigor y proyecto incluido. Empiece a construir desde el primer día~~Le presentamos en exclusiva esta oportunidad en el centro de Coín: vivienda unifamiliar de 120 m2 con obra iniciada, proyecto pagado y licencia activa.~Compre hoy y empiece a construir mañana, sin esperas ni burocracia.~~La parte más compleja ya está ejecutada: el interior ha sido completamente demolido y limpiado, el saneamiento es nuevo y las fachadas se mantienen. ~~Distribución proyectada:~~Planta baja: salón-comedor con cocina abierta + baño~Planta alta: 2 dormitorios + baño~Azotea: terraza solárium privada~~Como empresa constructora y experta en House Flipping, Grupo Sunsol le ofrece una estimación del coste de finalización de la vivienda llave en mano, asesoramiento técnico y posibilidad de gestión integral de la obra.~~Contáctenos para más información o para concertar una visita. Oportunidades con licencia activa, proyecto incluido y obra iniciada como esta son muy limitadas en el mercado actual. Ahorro estimado para el comprador: 18.000 € en costes de proyecto y licencias, además del importante ahorro de tiempo.~~El precio de venta no incluye los gastos derivados de la compraventa, tales como impuestos, aranceles notariales, inscripción en el Registro de la Propiedad ni honorarios profesionales correspondientes a la parte compradora.

Características generales

  • Coín
  • 2
  • 2

Especificaciones técnicas

  • 120
  • 120

Certificado energético

  • No disponible
  • No disponible
  • No disponible
  • Etiqueta de calificación energética
    ESCALA DE LA CALIFICACIÓN ENERGÉTICA

    Consumo de energía

    kW h m² / año

    Emisiones

    kg CO₂ m² / año

    A más eficiente
    B
    C
    D
    E
    F
    G menos eficiente
    Esta información se irá actualizando diariamente

Precio

Precio del inmueble:
119.000 €
Precio por m²:
992 €/m²
Avisame si baja de precio
Te avisaremos si el precio del inmueble baja.
Calcular hipoteca bancaria
Simulador de hipotecas CaixaBank

Puedes simular la cuota con la calculadora de hipotecas CaixaBank.

Ubicación

Málaga, Coín
Dirección aproximada por deseo del anunciante.
Information Image
Equipa tu vivienda con Facilitea

¿Ya elegiste tu hogar ideal? Equipa tu hogar con todo lo que necesitas para convertirlo en un espacio acogedor y funcional.

Contactar
Completa el formulario para contactar con el anunciante y ver su número de teléfono.
Selecciona el motivo de contacto
Solicitar información del inmueble y financiación
Solicitar información del inmueble
Otro motivo de contacto
Añadir comentario (opcional)

Facilitea comunicará los datos facilitados al anunciante del inmueble para atender su solicitud. El anunciante los tratará en calidad de responsable y le informará de su tratamiento.

Si lo prefieres, también puedes llamarlo al siguiente número de teléfono.
644533337
Ofrecido por Sunsol Properties And Reforms SL