Ofrecido por FERNANDO VALERO Y ASOCIADOS SL

PLANTA BAJA CON TERRAZA Y GARAJE: CAMBIO DE USO DE LOCAL A VIVIENDA

Alicante, Elche Mostrar en mapa
172.500 €
2 habs.
3 baños
115
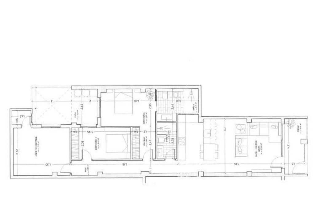
¿Buscas la comodidad de una planta baja con el estilo de un loft moderno?~Imagina entrar en un espacio diseñado desde cero, donde la luz y la amplitud son los protagonistas. Te presentamos este espectacular proyecto de transformación de local a vivienda con cambio de uso totalmente legalizado, que combina la modernidad de un diseño vanguardista con la funcionalidad que tu familia necesita.~Esta vivienda no es solo un lugar donde vivir; es un lienzo en blanco donde tú todavía tienes la última palabra.~Distribución Inteligente y Espacios Abiertos~La vivienda destaca por su distribución fluida y sin pasillos interminables:~•Gran Salón-Comedor con Cocina Integrada: El corazón de la casa, perfecto para reuniones y vida en familia.~•3 Dormitorios: Espaciosos y luminosos.~•2 Baños Amplios: Equipados con muebles de diseño incluidos.~•Terracita Exterior: Tu rincón privado para tomar el café por la mañana o disfrutar de las noches de verano.~Calidades de Vanguardia (Lo que no se ve, pero se siente)~Hemos seleccionado materiales que garantizan durabilidad y confort térmico y acústico:~•Suelos de gres porcelánico de gran formato: Elegancia y resistencia en cada paso.~•Paredes en liso: Acabados perfectos para un look minimalista.~•Carpintería Premium: Puertas lacadas en blanco y ventanas de aluminio tipo Climalit para un aislamiento óptimo.~•Climatización: Preinstalación de aire acondicionado en salón-comedor.~•Independencia Total: Suministros de agua y luz propios y Cédula de Habitabilidad garantizada.~Personaliza tu hogar: Techos Altos y Flexibilidad~Una de las joyas de esta propiedad son sus techos altos, que aportan una sensación de amplitud inigualable. Al estar actualmente en proceso de obra, tienes la posibilidad de modificar detalles para adaptarlos totalmente a tus gustos y necesidades. ¡Hazla tuya antes de que esté terminada!~~Ubicación y Comodidad~Olvídate de dar vueltas buscando aparcamiento: la vivienda incluye plaza de garaje.~________________________________________~NOTA IMPORTANTE SOBRE LAS IMÁGENES: Las fotografías publicadas corresponden a una vivienda de la misma promotora ya finalizada y entregada. Se muestran a título informativo para ilustrar el nivel de acabados, la estética y las terminaciones similares que tendrá esta nueva vivienda.~________________________________________~Detalles de la Entrega~•Fecha prevista: septiembre de 2026 (obra finalizada con toda la fachada renovada).~•Estado: En construcción / Cambio de uso.~¿Quieres ser el primero en conocer los detalles del proyecto? No dejes escapar la oportunidad de invertir en una vivienda a estrenar con todas las garantías legales y técnicas.~Contáctanos hoy mismo para una visita al espacio o para revisar los planos detallados.~EL PROYECTO PUEDE SUFRIR MODIFICACIONES. ~El anuncio puede contener errores.~La vivienda se entrega sin muebles ni electrodomésticos.~No incluido en el precio: ~-Impuestos de Transmisiones Patrimoniales~-Notaría por la compra~-Registro de la Propiedad~-Honorarios de gestión del comprador~~~

Características generales

  • Elche
  • Piso
  • 2
  • 3
  • 4
  • 2026

Especificaciones técnicas

  • 100
  • 0
  • 0
  • 115

Certificado energético

  • No disponible
  • G
  • G 1234.99 kg CO2/m² año
  • Etiqueta de calificación energética
    ESCALA DE LA CALIFICACIÓN ENERGÉTICA

    Consumo de energía

    kW h m² / año

    Emisiones

    kg CO₂ m² / año

    A más eficiente
    B
    C
    D
    E
    F
    G menos eficiente
    1,235.0
    Esta información se irá actualizando diariamente
Puerta segura

Precio

Precio del inmueble:
172.500 €
Precio por m²:
1.725 €/m²
Avisame si baja de precio
Te avisaremos si el precio del inmueble baja.
Calcular hipoteca bancaria
Simulador de hipotecas CaixaBank

Puedes simular la cuota con la calculadora de hipotecas CaixaBank.

Ubicación

Alicante, Elche
Dirección aproximada por deseo del anunciante.
Information Image
Equipa tu vivienda con Facilitea

¿Ya elegiste tu hogar ideal? Equipa tu hogar con todo lo que necesitas para convertirlo en un espacio acogedor y funcional.

Contactar
Completa el formulario para contactar con el anunciante y ver su número de teléfono.
Selecciona el motivo de contacto
Solicitar información del inmueble y financiación
Solicitar información del inmueble
Otro motivo de contacto
Añadir comentario (opcional)

Facilitea comunicará los datos facilitados al anunciante del inmueble para atender su solicitud. El anunciante los tratará en calidad de responsable y le informará de su tratamiento.

Si lo prefieres, también puedes llamarlo al siguiente número de teléfono.
966613297
Ofrecido por FERNANDO VALERO Y ASOCIADOS SL
También te puede gustar