Ofrecido por FERNANDO VALERO Y ASOCIADOS SL

CAMBIO DE USO DE LOCAL A VIVIENDA: LOFT DE DISEÑO, 1 DORM, TERRAZA Y GARAJE

Alicante, Elche Mostrar en mapa
137.500 €
1 baños
62
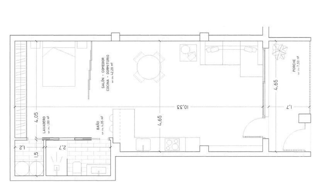
Diseño, Amplitud y Confort: Tu nuevo refugio urbano~¿Buscas una vivienda que rompa con lo convencional? Te presentamos este exclusivo proyecto de cambio de uso de local a vivienda, diseñado bajo un concepto de espacio abierto, techos infinitos y máxima luminosidad. Una planta baja pensada para quienes valoran la independencia, el diseño moderno y la comodidad de tenerlo todo a mano.~Esta propiedad cuenta con todos los requisitos legales: Cédula de Habitabilidad y suministros de agua y luz totalmente independientes.~Un espacio pensado para disfrutar~La vivienda se distribuye de forma magistral para aprovechar cada metro cuadrado:~•Salón-Comedor con Cocina Integrada: Un gran espacio social de concepto abierto, ideal para disfrutar de la amplitud que ofrecen sus techos altos.~•Dormitorio Principal: Independiente, espacioso y con un ambiente acogedor.~•Baño de Diseño: Amplio, con acabados modernos y mueble de baño incluido.~•Terracita Exterior: Tu desahogo privado al aire libre, un lujo difícil de encontrar en el centro.~Calidades que marcan la diferencia~No es solo una reforma, es una construcción nueva sobre un espacio existente con materiales de primera:~•Suelo de gres porcelánico de gran formato: Continuidad y elegancia en toda la casa.~•Paredes lisas y puertas lacadas en blanco: Para una estética limpia y atemporal.~•Aislamiento Premium: Ventanas de aluminio tipo Climalit para un silencio absoluto y preinstalación de aire acondicionado por conductos.~Hazlo a tu medida: Entrega aproximada en Septiembre 2026~La vivienda se encuentra actualmente en proceso de transformación, lo que te ofrece una oportunidad única: puedes modificar detalles durante la obra y aprovechar la altura de sus techos para crear el ambiente que siempre soñaste. La entrega está prevista para septiembre de 2026, con toda la fachada del edificio renovada.~El valor añadido: Plaza de Garaje~Encontrar una vivienda de diseño con plaza de garaje incluida es una oportunidad que no puedes dejar pasar. Olvida el estrés de aparcar y disfruta de la comodidad total desde el primer día.~________________________________________~INFORMACIÓN SOBRE LAS FOTOS: Las imágenes que acompañan a este anuncio pertenecen a otra vivienda de la misma promotora ya finalizada. Se publican para mostrar el nivel de acabados, materiales y estética (suelos, paredes, carpintería) que tendrá este nuevo proyecto de cambio de uso.~________________________________________~¿Quieres ver el plano o visitar el espacio? Estamos ante una de las tipologías de vivienda más demandadas por su alta rentabilidad y estilo de vida moderno.~¡Contacta con nosotros y reserva tu visita al que será tu próximo hogar!~EL PROYECTO PUEDE SUFRIR MODIFICACIONES. ~El anuncio puede contener errores.~La vivienda se entrega sin muebles ni electrodomésticos.~No incluido en el precio: ~-Impuestos de Transmisiones Patrimoniales~-Notaría por la compra~-Registro de la Propiedad~-Honorarios de gestión del comprador~~

Características generales

  • Elche
  • Piso
  • 1
  • 4
  • 2026

Especificaciones técnicas

  • 54
  • 0
  • 0
  • 62

Certificado energético

  • No disponible
  • G
  • G 1234.99 kg CO2/m² año
  • Etiqueta de calificación energética
    ESCALA DE LA CALIFICACIÓN ENERGÉTICA

    Consumo de energía

    kW h m² / año

    Emisiones

    kg CO₂ m² / año

    A más eficiente
    B
    C
    D
    E
    F
    G menos eficiente
    1,235.0
    Esta información se irá actualizando diariamente
Puerta segura

Precio

Precio del inmueble:
137.500 €
Precio por m²:
2.546 €/m²
Avisame si baja de precio
Te avisaremos si el precio del inmueble baja.
Calcular hipoteca bancaria
Simulador de hipotecas CaixaBank

Puedes simular la cuota con la calculadora de hipotecas CaixaBank.

Ubicación

Alicante, Elche
Dirección aproximada por deseo del anunciante.
Information Image
Equipa tu vivienda con Facilitea

¿Ya elegiste tu hogar ideal? Equipa tu hogar con todo lo que necesitas para convertirlo en un espacio acogedor y funcional.

Contactar
Completa el formulario para contactar con el anunciante y ver su número de teléfono.
Selecciona el motivo de contacto
Solicitar información del inmueble y financiación
Solicitar información del inmueble
Otro motivo de contacto
Añadir comentario (opcional)

Facilitea comunicará los datos facilitados al anunciante del inmueble para atender su solicitud. El anunciante los tratará en calidad de responsable y le informará de su tratamiento.

Si lo prefieres, también puedes llamarlo al siguiente número de teléfono.
966613297
Ofrecido por FERNANDO VALERO Y ASOCIADOS SL